
PONTEDERA (PI)

RIF.013 PONTEDERA (zona SANTA LUCIA) - PROSSIMA REALIZZAZIONE
APPARTAMENTO A PIANO PRIMO ED ULTIMO, INDIPENDENTE ED AD ALTO RISPARMIO ENERGETICO - 2 CAMERE E GIARDINO - CLASSE ENERGETICA A4
Nella frazione di Santa Lucia, zona residenziale alle porte di Pontedera, prossima realizzazione di un fabbricato residenziale ad alto risparmio energetico nel quale, tra le varie soluzioni in vendita, è in vendita questo bellissimo appartamento posto al piano primo ed ultimo con doppio ingresso indipendente e dotato di resede privato e logga coperta.
L'appartamento avrà una superficie lorda di 90 mq (113 mq commercili) e verrà realizzato con i più moderni criteri per il risparmio energetico (cappotto termico, riscaldamento/raffrescamento a pavimento, fotovoltaico ecc).
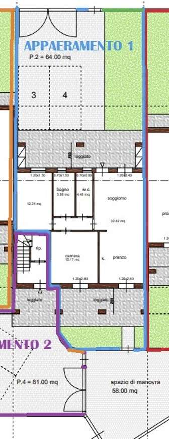
I progetti architettonici prevedono l'ingresso principale all'abitazione da un giardino/resede di proprietà esclusiva di 103 mq dotato di cancello pedonale e carrabile con due ampi posti auto e un loggiato coperto all'entrata dell'abitazione;
All'interno l'abitazione avrà un comodo ripostiglio a piano terra, la scala interna che conduce al primo piano, un' ampio spazio open space con cucina a vista e ripostiglio; dalla cucina si potrà uscire all'esterno in un ulteriore spazio privato di 35 mq circa, ovvero una grande terrazza coperta da loggia, comodissima per pranzi e cene all'aperto.
La zona notte occuperà due camere e doppi servizi.
Sottotetto praticabile di circa 30 mq.
Ottime le rifiniture e le dotazioni: cappotto termico, riscaldamento/raffrescamento a pavimento, caldaia mista a pompa di calore, fotovoltaico, portone ingresso blindato, cancello carrabile, cancello pedonale, predisposizione allarme, predisposizione canna fumaria. € 295.000
Esposizione: Sud - Nord
CONSEGNA PREVISTA: PRIMAVERA 2024